APARTMÁN S RECEPCÍ

STS, PP

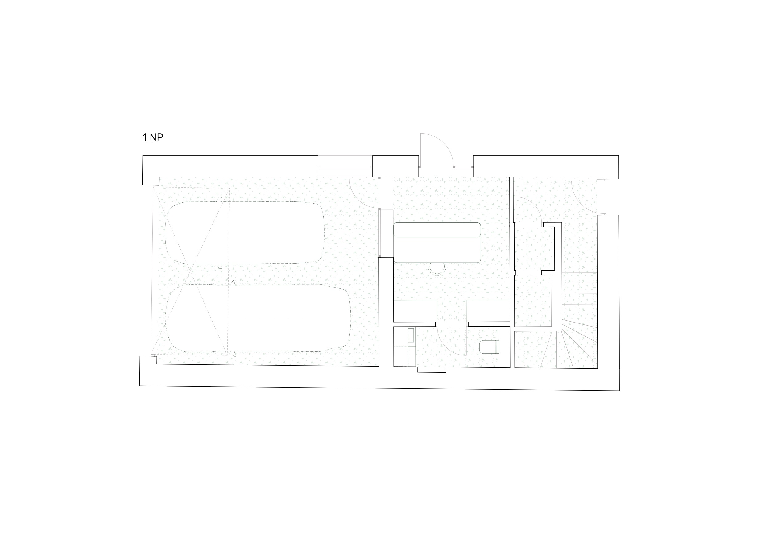
Projekt rekonstrukce přeměňuje stávající objekt na objekt smíšeného využití s recepční, garážovou a obytnou funkcí. V 1. NP je recepce, sociální zázemí, garáž a oddělený vstup do apartmánu ve 2. NP.

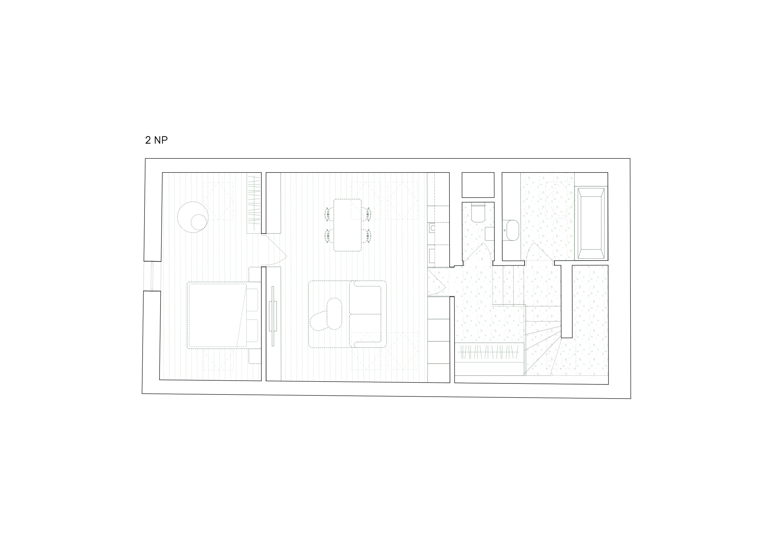
Apartmán 2+kk ve 2. NP zahrnuje koupelnu se vanou a oddělené WC, schodiště. Interiér disponuje světlým dubovým dřevem, světle šedým terrazzo podlahami a kontrastními barevnými objekty. Kuchyně je řešena v mořené zelené.

Podkroví pokračuje otevřenou obývací zónou s rozkládacím gaučem a ložnicí s křeslem a vestavěným úložným prostorem.  

Původní stav